GALLERY

£2,200 pcm
Let Agreed

St. Anthonys Avenue, Woodford Green IG8

Terraced House
2 Reception
3 Bedrooms
2 Bathrooms

Property Summary

Welcome to this beautifully styled three-bedroom terraced home, complete with its own driveway and off-street parking. Perfectly positioned within easy reach of Woodford Central Line station, your daily commute into the City is made effortless.

On weekends, step outside and enjoy the leafy surrounds of Woodford Green and Broadmead Playing Fields, ideal for leisurely strolls. Afterwards, wander over to Mill Lane and Johnston Road, where an inviting mix of cafés, restaurants, and local shops await, perfect for brunches, dinners, and relaxed afternoons with friends and family.

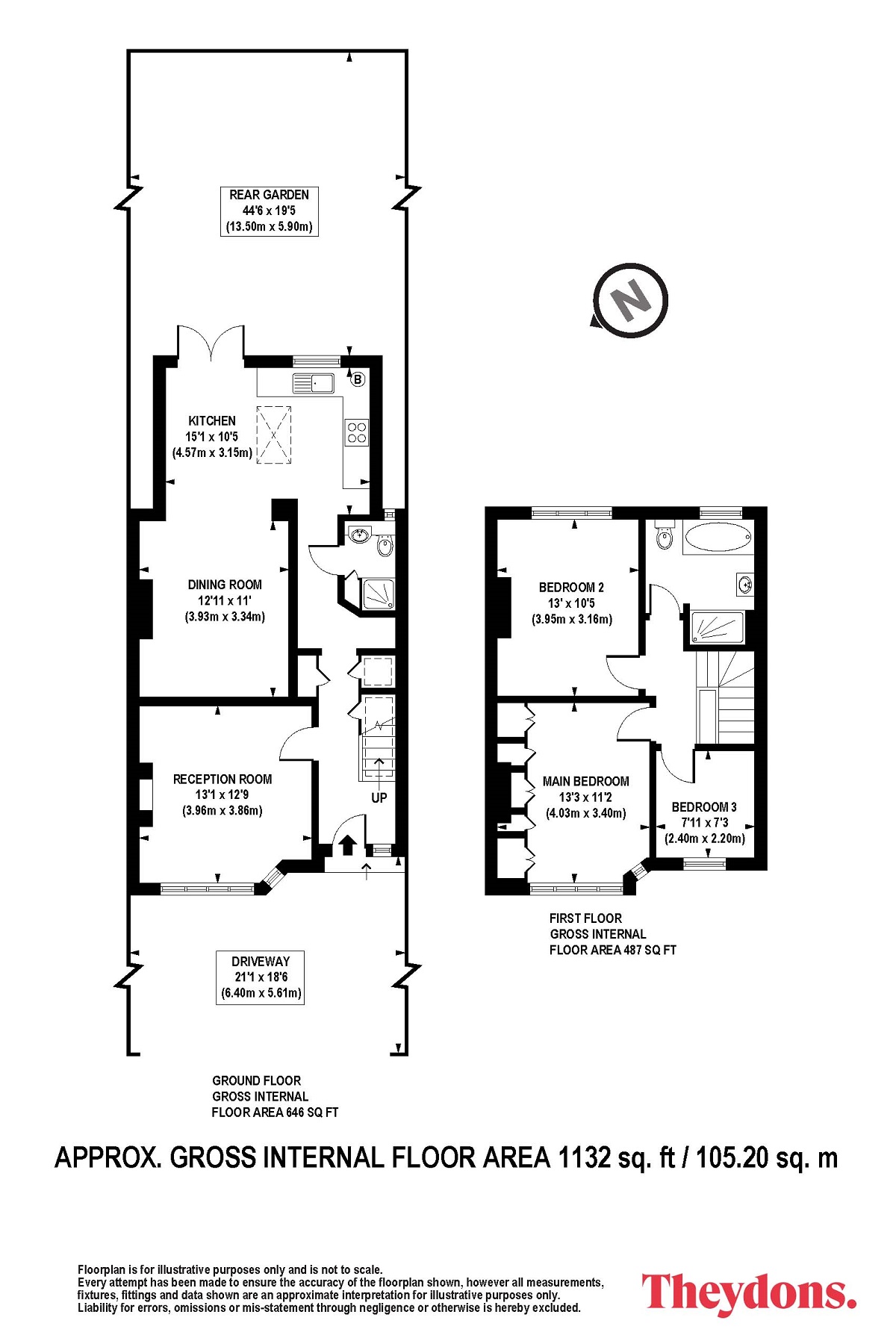
Comprising; Ground Floor:  Entrance hallway with access to ground floor shower room suite, roomy bay-fronted reception room with feature fireplace, dining area, large fitted kitchen including integrated oven and hob and access into the rear garden via double doors.

First Floor: Two good size double bedrooms with the main bedroom to the front adorned with bay window and fitted wardrobes, third bedroom / study and a large bathroom suite with additional shower cubicle.

Externally: Access out into the rear garden with paved seating and laid to lawn areas, then to the front of this home is the convenient driveway to the front, providing off-street parking for two cars.

In Addition:

Walking distance of Woodford Central Line tube station

Close to main shopping areas and local amenities

Road links incl. A12, A406 & M11

Transport links into Westfield Stratford City, The Queen Elizabeth Olympic Park & East Village

Length of tenancy: 12 months

Deposit: £2,538

Council Tax Band: D

Features

Property Features

  • Beautifully presented three bedroom terraced house
  • Offered part-furnished
  • Driveway to front
  • Entrance hallway
  • Ground floor shower room suite
  • Bay fronted living area incl. feature fireplace
  • Dining Area
  • Fitted kitchen incl. integrated oven & hob
  • Three bedrooms to first floor
  • Fitted wardrobes to main bedroom
  • Large bathroom suite incl. additional shower
  • Rear garden
  • Good access to main shopping areas & local amenities
  • Close to Woodford station
  • EPC Rating C

Rooms

Full Details

Driveway 21'1 x 18'6 (6.40m x 5.61m)

Living Area 13'1 x 12'9 (3.96m x 3.86m)

Ground Floor Shower Room Suite

Dining Area 12'11 x 11' (3.93m x 3.34m)

Fitted Kitchen 15'1 x 10'5 (4.57m x 3.15m)

Rear Garden 44'6 x 19'5 (13.50m x 5.90m)

Main Bedroom 13'3 x 11'2 (4.03m x 3.40m)

Bedroom Two 13' x 10'5 (3.95m x 3.16m)

Bedroom Three 7'11 x 7'3 (2.40m x 2.20m)

First Floor Bathroom Suite incl. Shower

T

Viewing by appointment via Theydons

Disclaimer: (All measurements are approximate sizes and are given as a guide only as obstacles may have prevented accuracy)

All photographs are reproduced for general information and it cannot be inferred that any items shown are included.

“These particulars have been prepared by Theydons upon the instruction of the owner(s) and they shall not constitute an offer or the basis of any contract. Our inspection of the property was purely to prepare these particulars and no form of survey, structural or otherwise was carried out. Services, fittings and equipment referred to within the particulars have not been tested (unless otherwise stated) and no warranties can be given.

T