GALLERY

£435,000 Offers Over
Sold STC
|   Leasehold

Pretoria Road, Leytonstone E11

1 Reception
2 Bedrooms
1 Bathrooms

Property Summary

Brimming with potential, this well-located two-bedroom, with additional office, first-floor flat enjoys its own front door and a private rear garden, just moments from a mix of local cafés, pubs and everyday conveniences. Popular spots such as Unity Café, the Heathcote & Star and Filly Brook are all close by, making it easy to enjoy a relaxed coffee, a casual drink or dinner with friends close to home.

A short walk leads you to the much-loved Francis Road, a pedestrianised hub of independent shops, cafés and eateries that gives the area its friendly, village-like feel, while larger supermarkets including Tesco, Aldi and an M&S Foodhall are also within easy reach.

With excellent transport connections via the Overground, Central Line and numerous bus and cycle routes, getting into the City and beyond is straightforward. When it’s time to slow the pace, Hollow Ponds, Epping Forest and the Queen Elizabeth Olympic Park are all nearby, offering plenty of green space for walking, cycling or simply enjoying the outdoors.

A Private Welcome

Step through your own front door into a welcoming hallway, where stairs lead you up to the first-floor landing of this versatile home.

Light-Filled Bedrooms & Flexible Living

To the front of the property, the bay-fronted main bedroom is bathed in natural light, creating a bright and restful retreat. A charming cast-iron fireplace adds character, making this space feel truly special. Alongside it sits a second front-facing room, ideal as a office or dressing room - perfectly adaptable to suit your lifestyle.

Moving through the home, you’ll find a generous second double bedroom overlooking the gardens, offering a peaceful outlook and a calm place to unwind.

Relax, Entertain & Unwind

Further along the hallway is the bathroom suite, followed by the heart of the home: a wonderfully bright living and dining space. Two large side windows fill the room with natural light, creating a warm and inviting atmosphere. Whether you’re hosting friends, enjoying family time, or settling in for a cosy movie night, this versatile room provides the perfect setting.

Effortless Flow into the Kitchen

The living area flows seamlessly into the fitted kitchen, complete with wall and base units and an integrated oven and hob—the essentials you need to prepare everything from simple suppers to weekend feasts.

Practical Touches

To the rear of the home, a handy utility area offers additional storage and workspace, with a door and stairs leading directly down to the garden—making day-to-day living easy and practical.

Your Own Outdoor Escape

Outside, you’ll find your own private rear garden, ready to be transformed into a tranquil oasis. Whether it’s summer dining, weekend gardening, or simply relaxing in the sun, this outdoor space offers endless potential to enjoy the warmer months.

 

In Addition:

Great access to local amenities & main shopping areas

Close to the popular pedestrianised Francis Road area

Walking distance to transport links incl. Central Line tube

Road links inc. A12, A406 & M11

Transport links into Westfield Stratford City, The Queen Elizabeth Olympic Park & East Village

Lease: 125 years from 30 October 2017

Ground Rent: £125 per annum

Service Charge: N/A

Council Tax Band: B

Features

Property Features

  • Well located two-bedroom first floor flat
  • Offered chain free
  • Own front door
  • Entrance hall and split level landing
  • Bay fronted main bedroom incl. feature cast iron fireplace
  • Good size second bedroom
  • Office room
  • Bathroom suite
  • Bright & airy living / dining room
  • Fitted kitchen incl. integrated oven & hob
  • Utility area with access down to garden
  • Door and stairs down to garden
  • Own rear garden
  • Close to local amenities & main shopping areas
  • Good access to transport links incl. Central Line tube
  • EPC Rating D

Rooms

Full Details

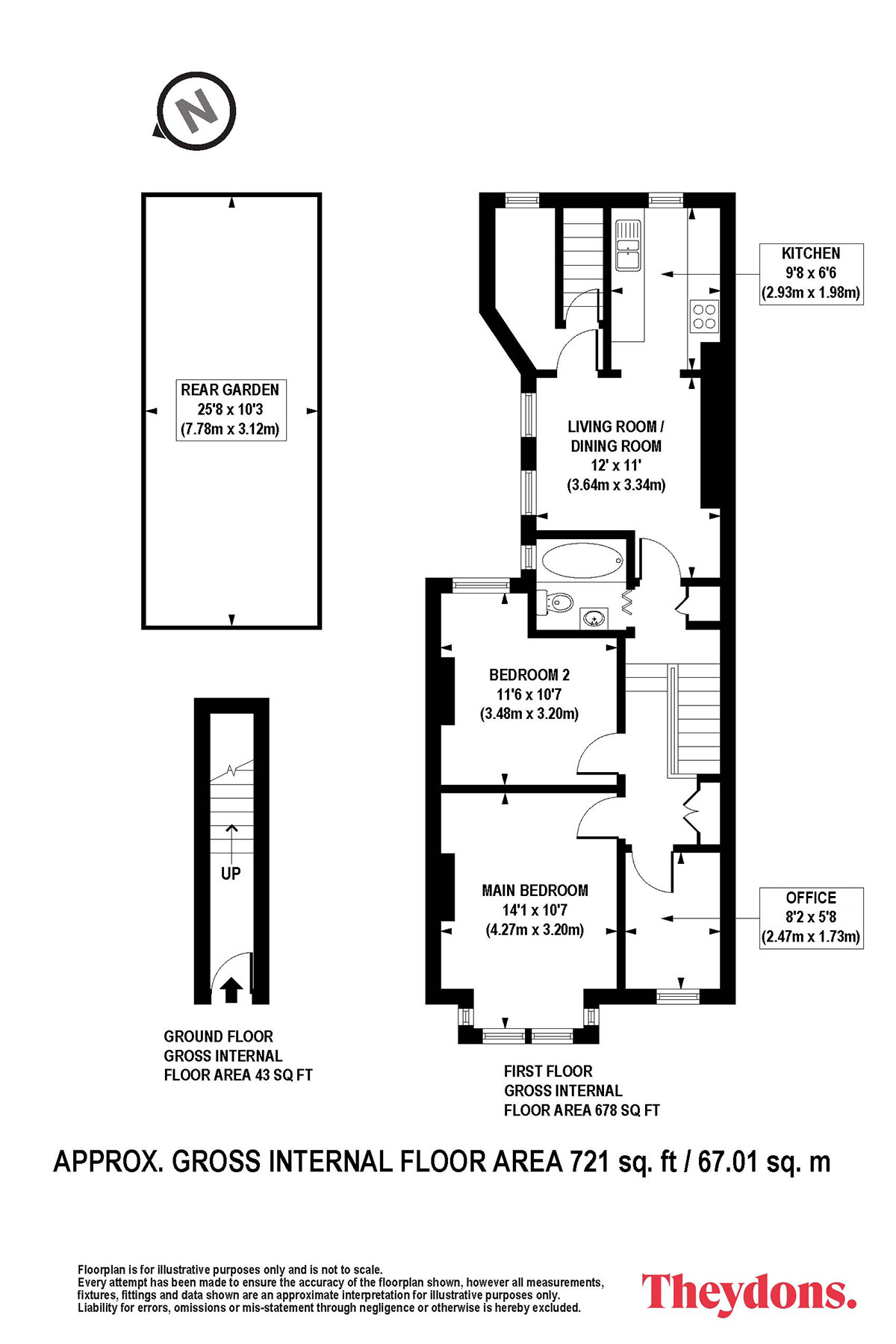
Main Bedroom 14'1 x 10'7 (4.27m x 3.20m)

Bedroom Two 11'6 x 10'7 (3.48m x 3.20m)

Office Room 8'2 x 5'8 (2.74m x 1.73m)

Bathroom Suite

Living / Dining Room 12' x 11' (3.64m x 3.34m)

Fitted Kitchen 9'8 x 6'6 (2.93m x 1.98m)

Rear Garden 25'8 x 10'3 (7.78m x 3.12m)

T

Viewing by appointment via Theydons

Disclaimer: (All measurements are approximate sizes and are given as a guide only as obstacles may have prevented accuracy)

All photographs are reproduced for general information and it cannot be inferred that any items shown are included.

“These particulars have been prepared by Theydons upon the instruction of the owner(s) and they shall not constitute an offer or the basis of any contract. Our inspection of the property was purely to prepare these particulars and no form of survey, structural or otherwise was carried out. Services, fittings and equipment referred to within the particulars have not been tested (unless otherwise stated) and no warranties can be given.

T