Property Summary
Tucked away on a peaceful, tree-lined one-way road in the ever-popular Bushwood area, this spacious two-bedroom first-floor apartment offers the perfect balance of calm and connectivity. Just a short walk away, Leytonstone Central Line station, along with an excellent network of bus and cycle routes, keeps you seamlessly linked to the City and beyond, ideal for both daily commutes and spontaneous evenings out.
Moments from your doorstep, High Road Leytonstone brings you a wonderful mix of independent cafés, favourite eateries and everyday essentials. From a morning coffee to a relaxed weekend browse of Tesco, Aldi or the impressive M&S Food Hall, everything you need is close at hand.
And when the pace of city life calls for a pause, the natural beauty of Hollow Ponds and Epping Forest is just a gentle stroll away, offering open skies, tranquil waters and leafy trails to frame your daily walks.
A Warm Welcome Home
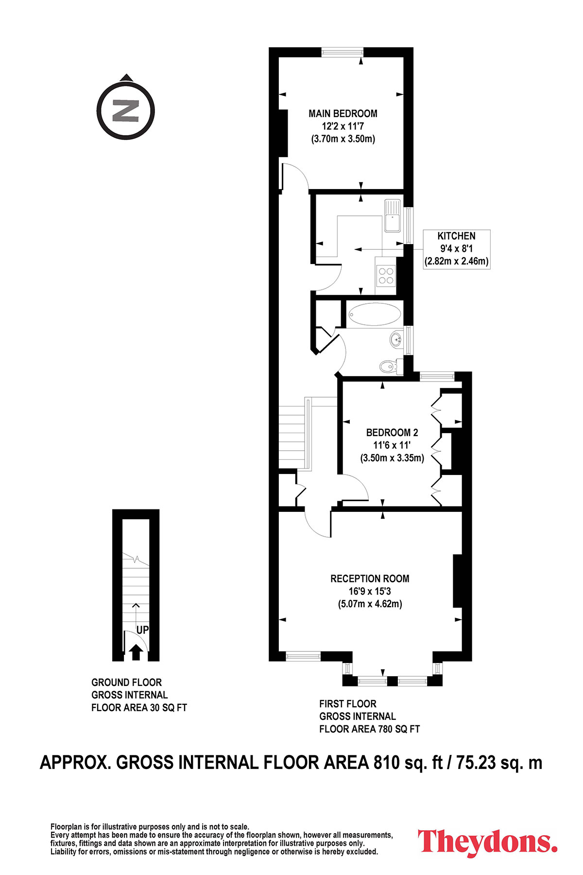
Step inside and imagine the possibilities. This inviting home is ready and waiting for you to add your own interior style and personality. Enter through the eye-catching shared front door and hallway before arriving at your own private entrance. From here, stairs rise to a charming split-level landing, a subtle architectural detail that adds character and a sense of space from the very first moment.
Light-Filled Living
To the front of the home, a bright bay-fronted living and dining area sets the tone. Bathed in natural light, this is a wonderfully versatile space — perfect for cosy evenings catching up on your favourite series or hosting relaxed dinner parties with family and friends. The bay window creates both charm and dimension, making this the true heart of the home.
Comfort & Practicality
Just behind the living space, the generously sized second bedroom offers fitted wardrobes, keeping clothing and accessories neatly tucked away. Whether used as a guest room, home office, or peaceful retreat, it’s a room that adapts effortlessly to your lifestyle.
The spacious bathroom suite is conveniently positioned nearby and benefits from a useful storage cupboard — ideal for keeping towels and everyday essentials neatly organised, maintaining that calm, uncluttered feel.
A Kitchen Filled with Light
The kitchen provides a welcoming space to cook, create and gather. Already fitted with wall and base units, generous work surfaces with tiled surround, and a large side window, the room enjoys an abundance of natural light and fresh air. It’s a practical yet inviting setting.
A Serene Main Bedroom
Positioned quietly at the rear of the property, the main double bedroom offers a tranquil space to unwind at the end of the day. Comfortably sized, it allows room not only for restful sleeping arrangements but also additional storage solutions such as wardrobes or a chest of drawers.
In Addition:
Walking distance to High Road shopping & local amenities
Close to transport links incl. Central Line tube station
Short stroll to the picturesque Hollow Ponds & Epping Forest
Road links incl. A12, A406 & M11
Transport links into Westfield Stratford City, The Queen Elizabeth Olympic Park & East Village
Lease: 189 years beginning on and including 1 March 2016
Ground Rent: N/A
Council Tax Band: C
EPC Rating: C