GALLERY

£966,500
Sold
|   Freehold

Kimberley Road, Leytonstone E11

Terraced House
1 Reception
4 Bedrooms
2 Bathrooms

Property Summary

Tucked away on a peaceful residential street in the heart of Leytonstone, this beautifully renovated four-bedroom terraced home effortlessly combines modern style with everyday convenience. Beyond its elegant interiors and meticulous design, the property enjoys sweeping views of the City skyline via the fourth bedroom, providing the perfect backdrop. With Leytonstone Central Line station, local bus links, and a network of cycle routes just a short walk away, you’ll stay seamlessly connected to the City and beyond.

High Road Leytonstone offers a tempting mix of eateries, cafés, and everyday essentials, from a Tesco superstore and Aldi to the newly opened M&S Foodhall. For a more boutique experience, the much-loved Francis Road is just a stroll away, brimming with independent shops and charming eateries, ideal for weekend wandering. And when you’re craving nature, vast green escapes such as Epping Forest, Hollow Ponds, and Wanstead Flats are all nearby, inviting you to unwind in scenic surroundings whenever you please.

A Warm Welcome
Arrive through the gated front garden where a sleek tiled pathway leads you towards the striking stained-glass front door. Step inside and you’re greeted by a bright entrance hallway, complete with a convenient downstairs WC and cellar, setting the tone for the stylish living that awaits within.

Heart of the Home
At the centre of this property is a beautifully designed open-plan living, kitchen and dining space. To the front, the spacious bay-fronted lounge is a haven for cosy movie nights. A cast iron fireplace with decorative mantel, patterned tile inserts, and bespoke shelving in the chimney recesses bring charm and character, while allowing you to display colourful books and cherished keepsakes.

To the rear, the kitchen and dining area is the perfect blend of style and function. Sleek base units, fitted open shelving and a butler style sink, invite you to cook, create and entertain. Throw open the contemporary tri-folding doors and the space flows effortlessly into the garden, ideal for Summer gatherings or simply letting the outdoors in.

Upstairs Serenity
The first floor hosts two generous double bedrooms: the front adorned with a large bay window, the rear featuring fitted wardrobes within the chimney recesses. A third bedroom offers versatility as a guest room, nursery, or home office. Completing this level is a serene family bathroom, a calming retreat where you can sink into the tub after a long day.

Loft Living with a View
Ascend to the second floor and discover a stunning loft conversion designed to maximise light and views. Two skylights and a contemporary sliding door to a Juliette balcony frame sweeping city skyline vistas, bathing the space in natural beauty. This floor also features a stylish en-suite shower room, completing this private sanctuary.

Outdoor Escape
Step into a well-maintained rear garden, complete with a patio for alfresco dining and a lawn for relaxation, the perfect setting to enjoy sunny afternoons or evenings with friends. There is also convenient gated rear access into the garden.

 

Note from Owner: "We have loved living here, our street feels like a little community in itself and we know all of our neighbours so well. We have poured lots of love and care in to the house, replacing original features and adding extensions sympathetically to respond to modern living whilst honouring the house’s Edwardian past. "

 

In Addition

Short stroll to local amenities and eateries

Close to the popular pedestrianised Francis Road area

Excellent transport links, including the Central Line

Easy access to Westfield Stratford City, The Queen Elizabeth Olympic Park & East Village

Convenient road links: A12, A406 & M11

Council Tax Band: D

Features

Property Features

  • Beautifully renovated four-bedroom terraced home
  • Freehold
  • Gated front garden
  • Bright entrance hallway with WC
  • Spacious open-plan living / dining / kitchen area
  • Fitted kitchen
  • Charming period features
  • Contemporary tri-folding doors to rear of kitchen
  • Two good size double bedrooms to first floor
  • Third bedroom / study / guest bedroom
  • Serene first floor bathroom suite
  • Stairs to first floor landing leading to second floor / loft conversion
  • Beautiful main bedroom with Juliette style balcony
  • Elegant en-suite shower room to main bedroom
  • Easy to maintain rear garden
  • Gated rear access to garden
  • Great access to transport links & local amenities
  • EPC Rating D

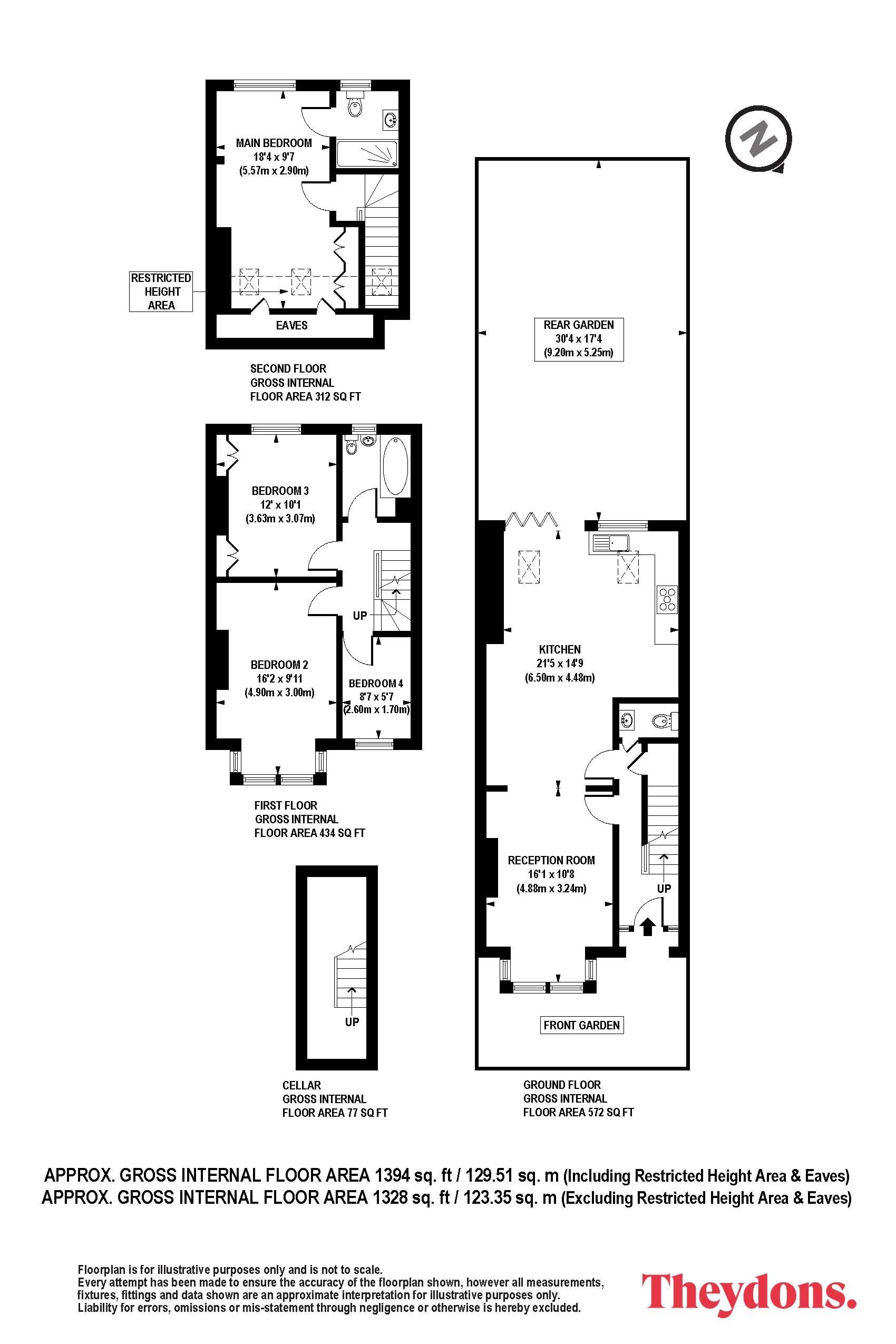
Rooms

Full Details

Reception Room 16'1 x 10'8 (4.88m x 3.24m)

Kitchen / Diner 21'5 x 14'9 (6.50m x 4.48m)

Rear Garden 30'4 x 17'4 (9.20m x 5.25m)

Bedroom Two 16'2 x 9'11 (4.90m x 3.00m)

Bedroom Three 12' x 10'1 (3.63m x 3.07m)

Bedroom Four 8'7 x 5'7 (2.60m x 1.70m)

First Floor Bathroom Suite

Main bedroom 18'4 x 9'7 (5.57m x 2.90m)

En-Suite Shower Room

T

Viewing by appointment via Theydons

Disclaimer: (All measurements are approximate sizes and are given as a guide only as obstacles may have prevented accuracy)

All photographs are reproduced for general information and it cannot be inferred that any items shown are included.

“These particulars have been prepared by Theydons upon the instruction of the owner(s) and they shall not constitute an offer or the basis of any contract. Our inspection of the property was purely to prepare these particulars and no form of survey, structural or otherwise was carried out. Services, fittings and equipment referred to within the particulars have not been tested (unless otherwise stated) and no warranties can be given.

T