Please complete the form below and a member of staff will be in touch shortly.
Features
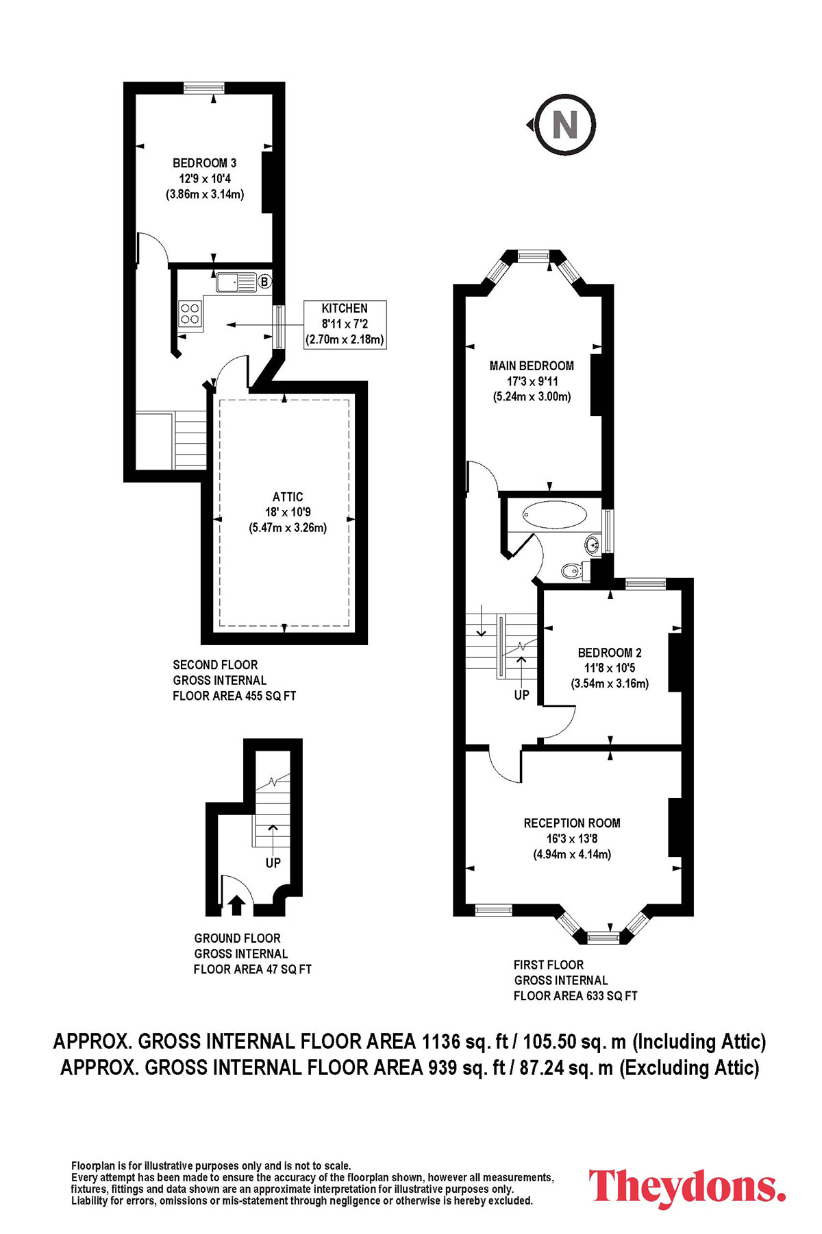
Rooms
Reception Room 16'3 x 13'8 (4.94m x 4.14m)
Bedroom Two 11'8 x 10'5 (3.54m x 3.16m)
Bathroom Suite
Bedroom One 17'3 x 9'11 (5.24m x 3.00m)
Bedroom Three 12'9 x 10'4 (3.86m x 3.14m)
Fitted Kitchen 8'11 x 7'2 (2.70m x 2.18m)
Viewing by appointment via Theydons
Disclaimer: (All measurements are approximate sizes and are given as a guide only as obstacles may have prevented accuracy)
All photographs are reproduced for general information and it cannot be inferred that any items shown are included.
“These particulars have been prepared by Theydons upon the instruction of the owner(s) and they shall not constitute an offer or the basis of any contract. Our inspection of the property was purely to prepare these particulars and no form of survey, structural or otherwise was carried out. Services, fittings and equipment referred to within the particulars have not been tested (unless otherwise stated) and no warranties can be given.